Wybrana nieruchomość

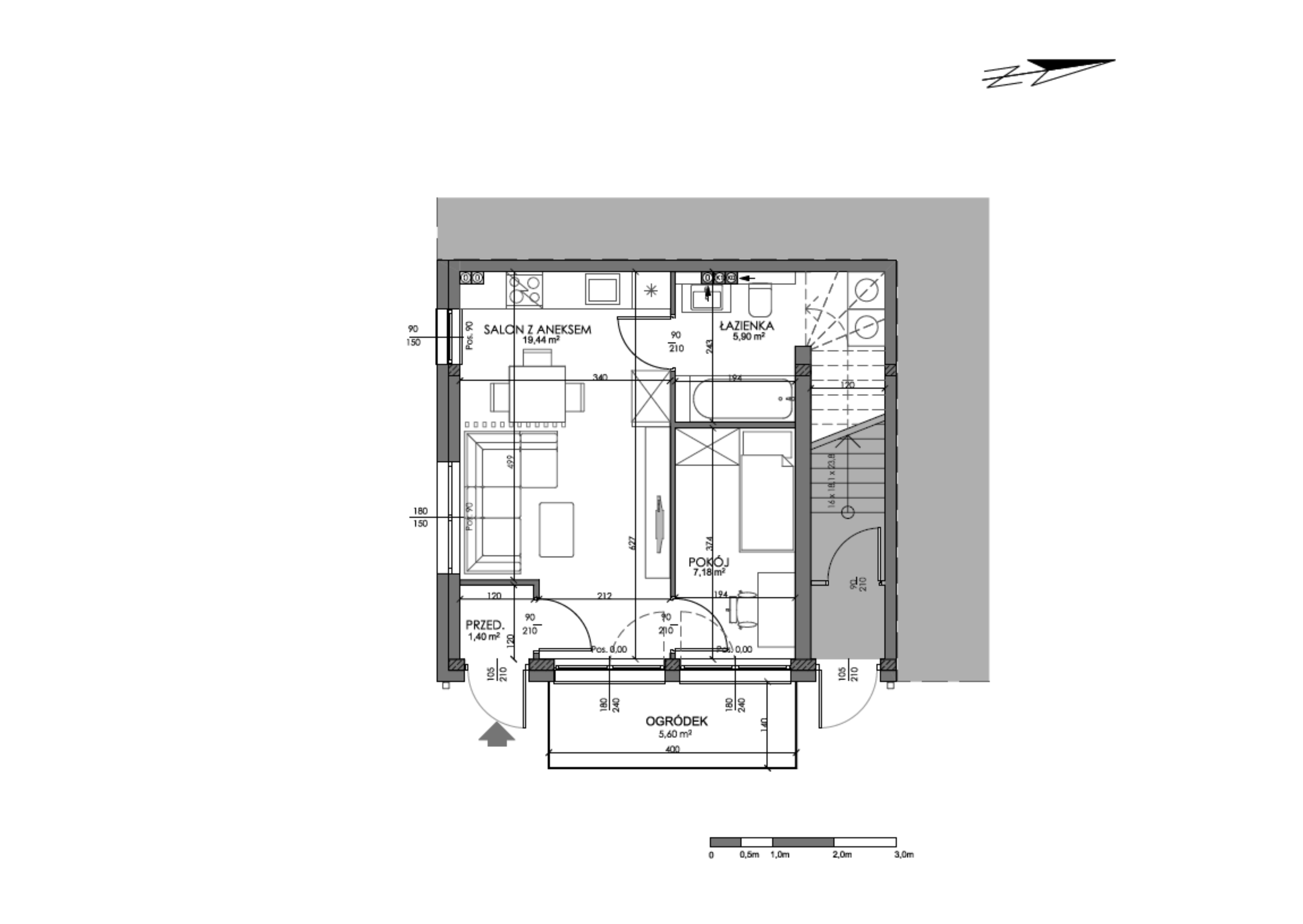
Mieszkanie nr 6A

Kondygnacja

---

Pow. użytkowa

33,92 m2

Powierzchnia ogródka

5,60 m2

Powierzchnia balkonu

---

Cena brutto

338 000 zł

9 965 zł/m2
Prospekt informacyjny
Facebook
YOUTUBE
INSTAGRAM