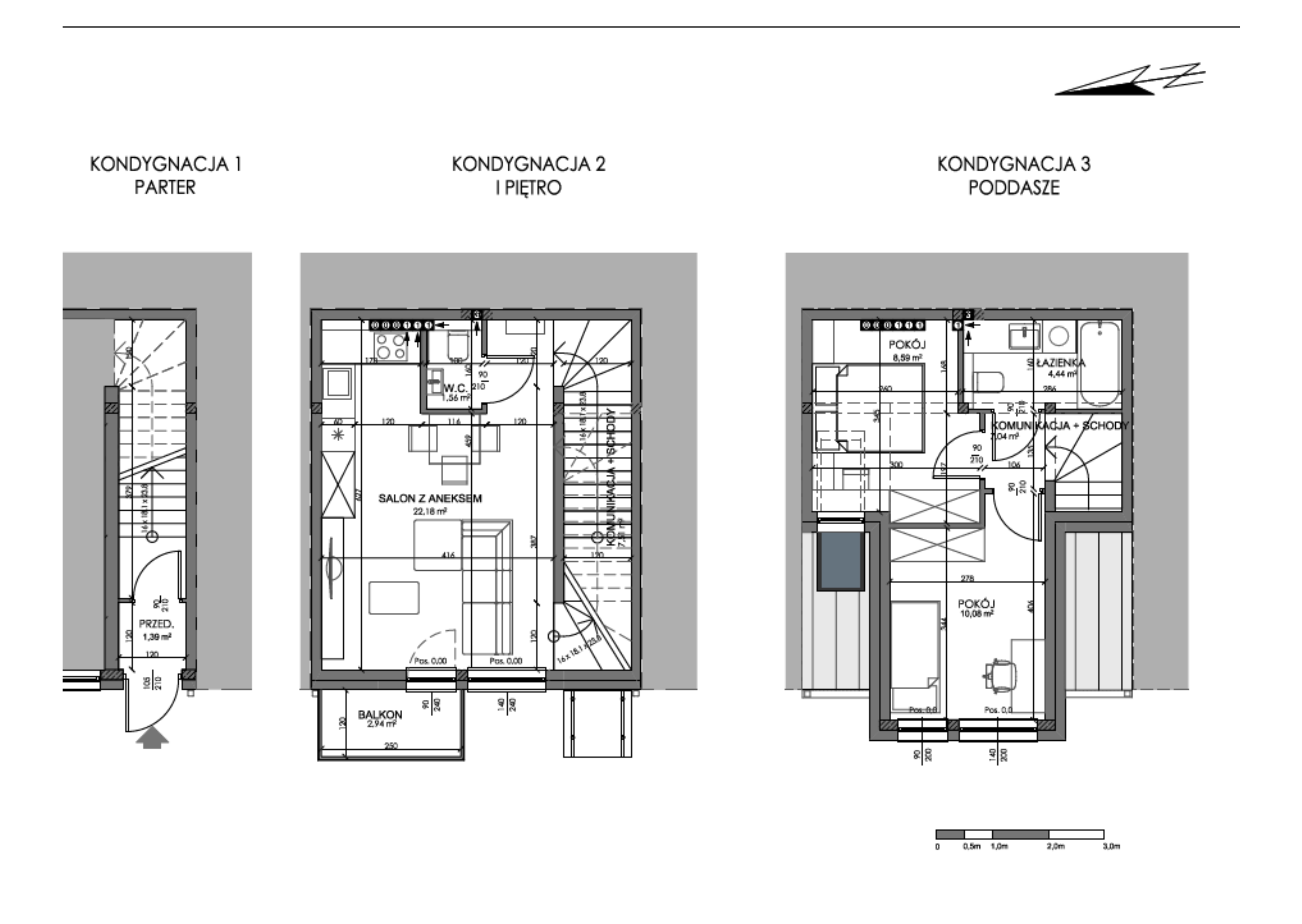
Wybrana nieruchomość

Mieszkanie nr 41B

Kondygnacja

---

Pow. użytkowa

62,79 m2

Powierzchnia ogródka

---

Powierzchnia balkonu

2,94 m2

Cena brutto

465 000 zł

7 406 zł/m2
Prospekt informacyjny
Facebook
YOUTUBE
INSTAGRAM