Wybrana nieruchomość

Mieszkanie nr 23A

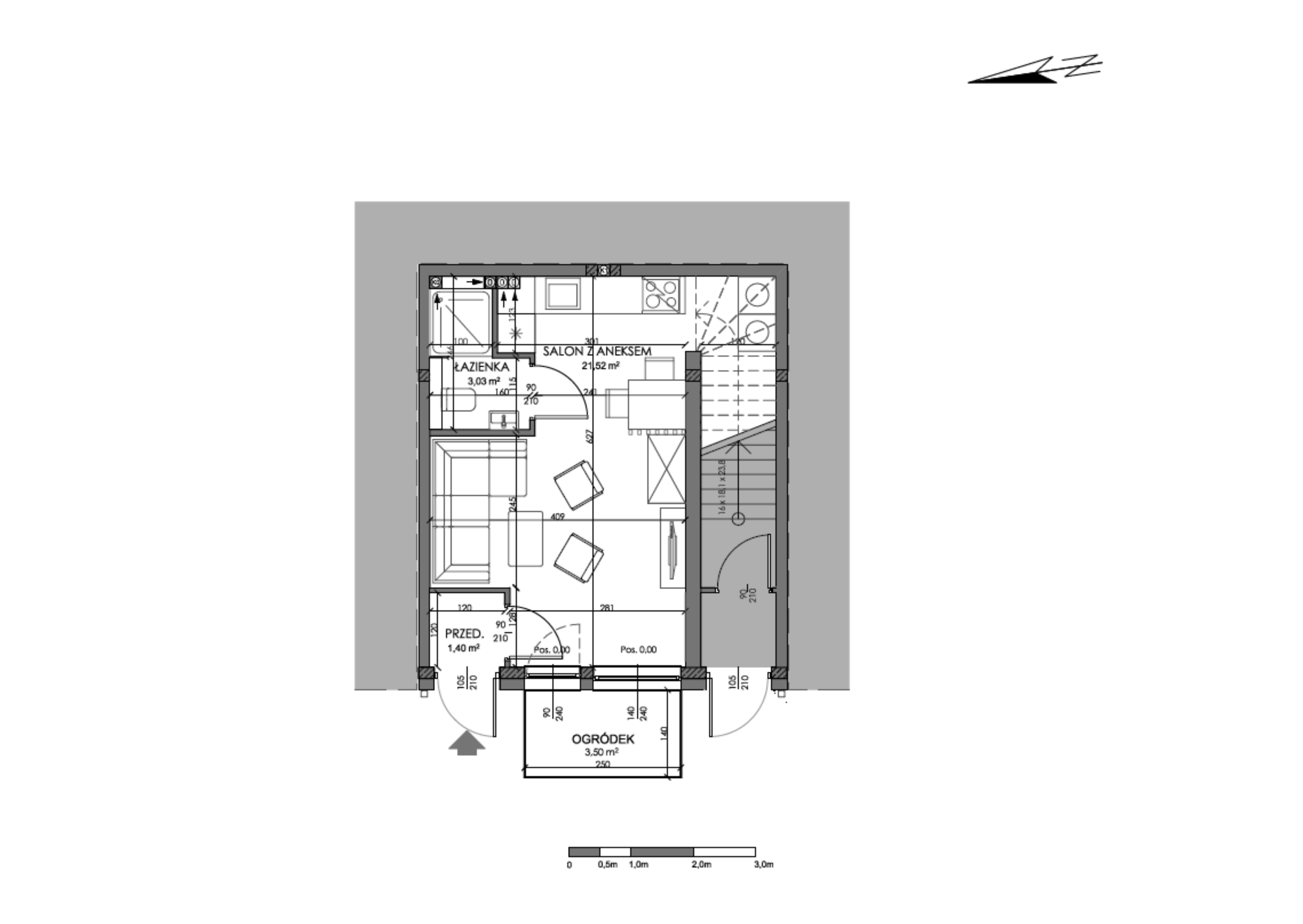
Kondygnacja

---

Pow. użytkowa

25,95 m2

Powierzchnia ogródka

3,50 m2

Powierzchnia balkonu

---

Cena brutto

250 000 zł

9 634 zł/m2
Prospekt informacyjny
Facebook
YOUTUBE
INSTAGRAM