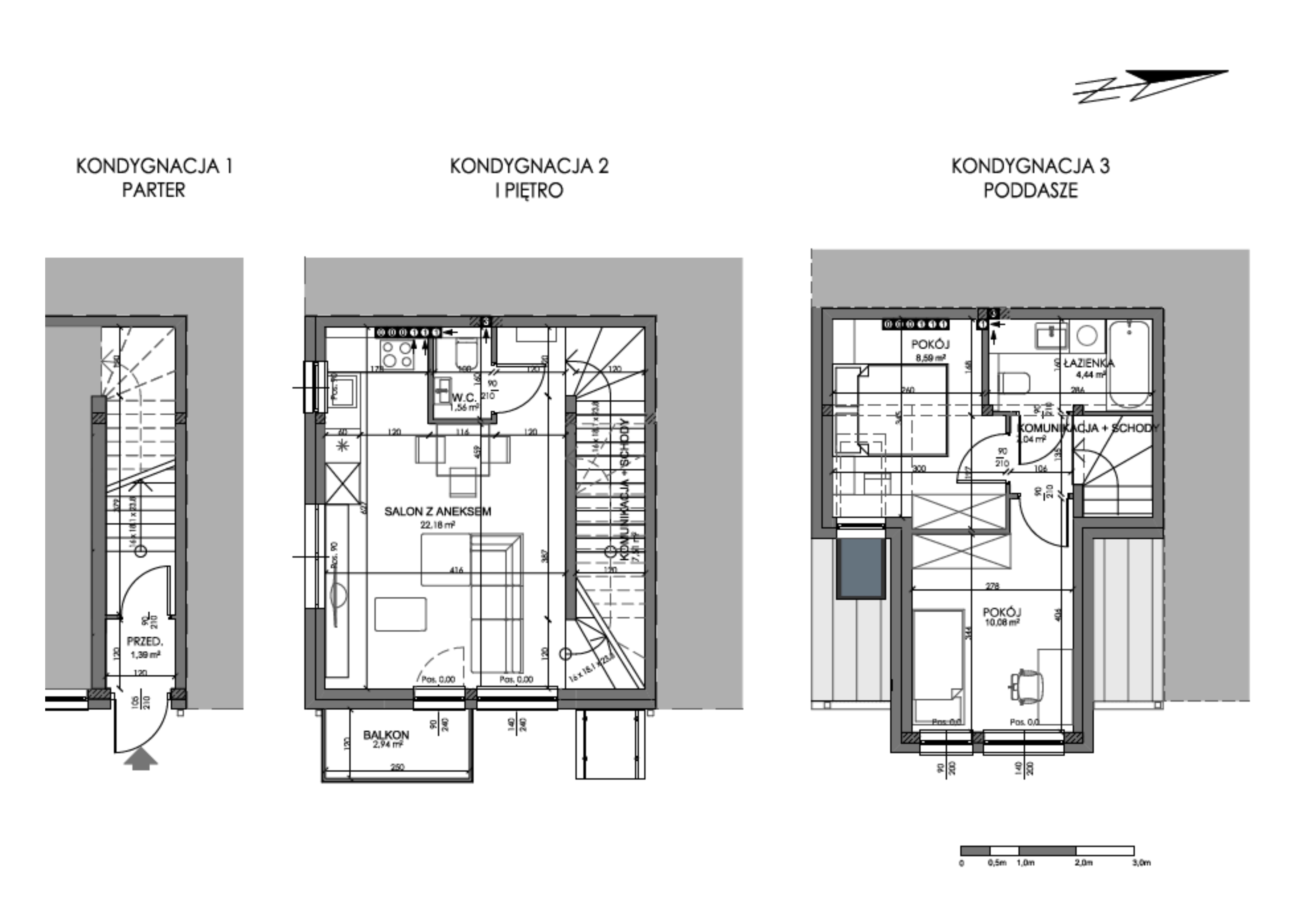
Wybrana nieruchomość

Mieszkanie nr 18B

Kondygnacja

---

Pow. użytkowa

62,79 m2

Powierzchnia ogródka

---

Powierzchnia balkonu

2,94 m2

Cena brutto

480 000 zł

7 645 zł/m2
Prospekt informacyjny
Facebook
YOUTUBE
INSTAGRAM