Wybrana nieruchomość

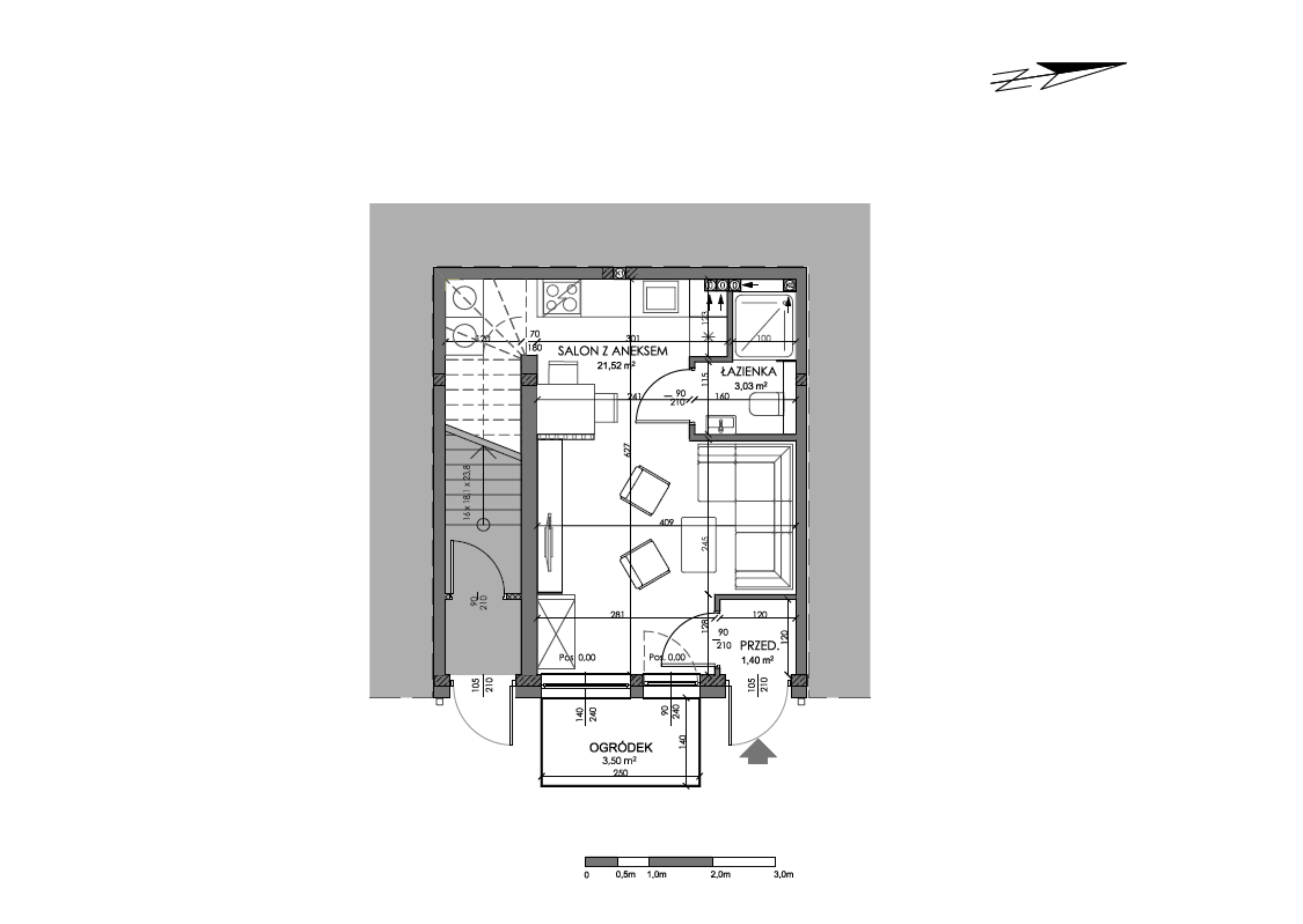
Mieszkanie nr 17A

Kondygnacja

---

Pow. użytkowa

25,95 m2

Powierzchnia ogródka

3,50 m2

Powierzchnia balkonu

---

Cena brutto

255 000 zł

9 827 zł/m2
Prospekt informacyjny
Facebook
YOUTUBE
INSTAGRAM