Wybrana nieruchomość

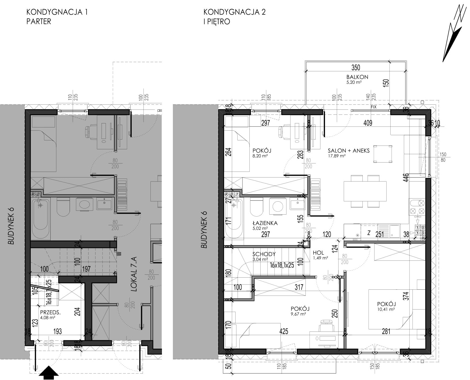
Mieszkanie nr 7B

Kondygnacja

Piętro I

Pow. użytkowa

59,80 m2

Powierzchnia balkonu/działki/ogrodu

---

Sprzedane

Prospekt informacyjny

W związku z realizacją inwestycji mogą wystąpić dodatkowe świadczenia pieniężne, niezwiązane bezpośrednio z ceną lokalu. Do takich kosztów zalicza się w szczególności:

Wszelkie dodatkowe opłaty będą ustalane indywidualnie i zgodnie z obowiązującymi przepisami prawa.

Facebook
YOUTUBE
INSTAGRAM