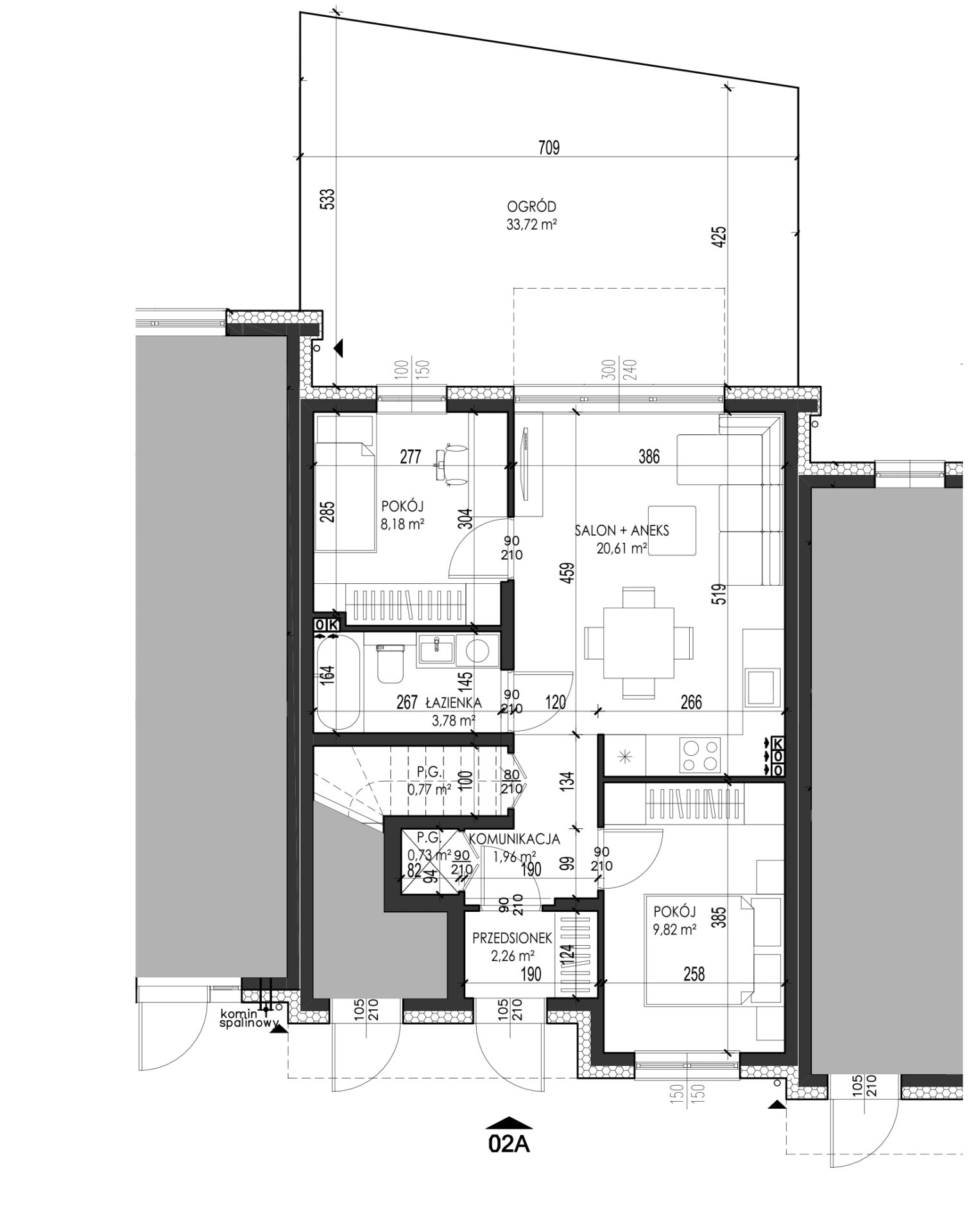
Wybrana nieruchomość

Mieszkanie nr 02A

Kondygnacja

Parter

Pow. użytkowa

48,33 m2

Powierzchnia ogródka

33,72 m2

Powierzchnia balkonu

---

Sprzedane

Prospekt informacyjny

W związku z realizacją inwestycji mogą wystąpić dodatkowe świadczenia pieniężne, niezwiązane bezpośrednio z ceną lokalu. Do takich kosztów zalicza się w szczególności:

Wszelkie dodatkowe opłaty będą ustalane indywidualnie i zgodnie z obowiązującymi przepisami prawa.

Facebook
YOUTUBE
INSTAGRAM