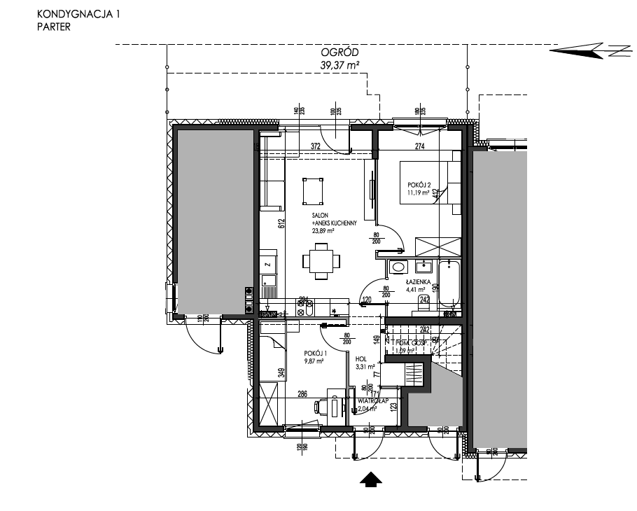
Wybrana nieruchomość

Mieszkanie nr 7A

Kondygnacja

Parter

Pow. użytkowa

55,80 m2

Powierzchnia balkonu/działki/ogrodu

39,37 m2

Cena brutto

434 900 zł

7 794 zł/m2
Prospekt informacyjny

W związku z realizacją inwestycji mogą wystąpić dodatkowe świadczenia pieniężne, niezwiązane bezpośrednio z ceną lokalu. Do takich kosztów zalicza się w szczególności:

Wszelkie dodatkowe opłaty będą ustalane indywidualnie i zgodnie z obowiązującymi przepisami prawa.

Facebook
YOUTUBE
INSTAGRAM