Wybrana nieruchomość

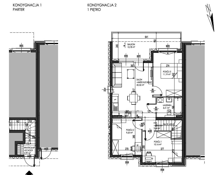
Mieszkanie nr 6B

Kondygnacja

Piętro I

Pow. użytkowa

62,38 m2

Powierzchnia balkonu/działki/ogrodu

12,78 m2

Cena brutto

439 900 zł

7 052 zł/m2
Prospekt informacyjny

W związku z realizacją inwestycji mogą wystąpić dodatkowe świadczenia pieniężne, niezwiązane bezpośrednio z ceną lokalu. Do takich kosztów zalicza się w szczególności:

Wszelkie dodatkowe opłaty będą ustalane indywidualnie i zgodnie z obowiązującymi przepisami prawa.

Facebook
YOUTUBE
INSTAGRAM